Altes Bauernhaus mit Geschichte, Scheune, Werkstatt und viel Potential für kreative Köpfe
Bauernhaus
235.000 €
Kaufpreis
3
Zimmer102 m²
Wohnfläche ca.385 m²
Grundstück ca.2676
Objektnummer
Beschreibung
Hier kann Geschichte bewahrt werden. Dieses historische Fachwerkhaus, erbaut um 1735, ist sehr gespannt, was es noch alles erleben darf.
Mit seiner rustikalen Ausstrahlung und dem ursprünglichen Charme ist es ein wahres Schmuckstück für Liebhaber traditioneller Bausubstanz.
Das Haus ist größtenteils renovierungsbedürftig und bietet daher viel Raum für individuelle Gestaltung.
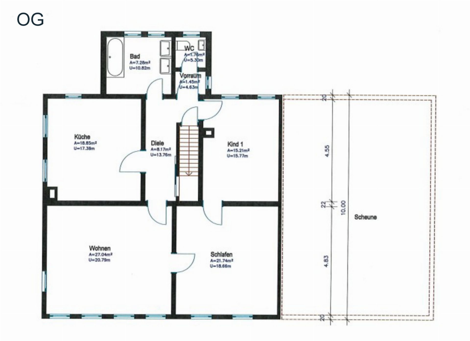
Momentan befindet sich eine 3-Zimmer-Wohnung im Obergeschoss des Hauses.
Eine große Küche, welche ausreichend Platz für einen gemütlichen Essbereich bietet, das Tageslicht-Bad mit Wanne und Dusche und das separate WC vervollständigen die Wohnung.
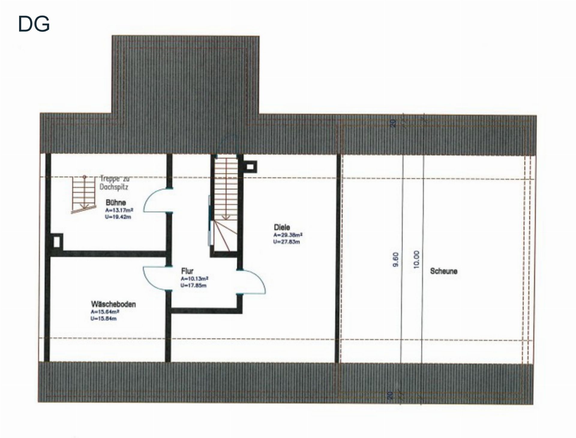
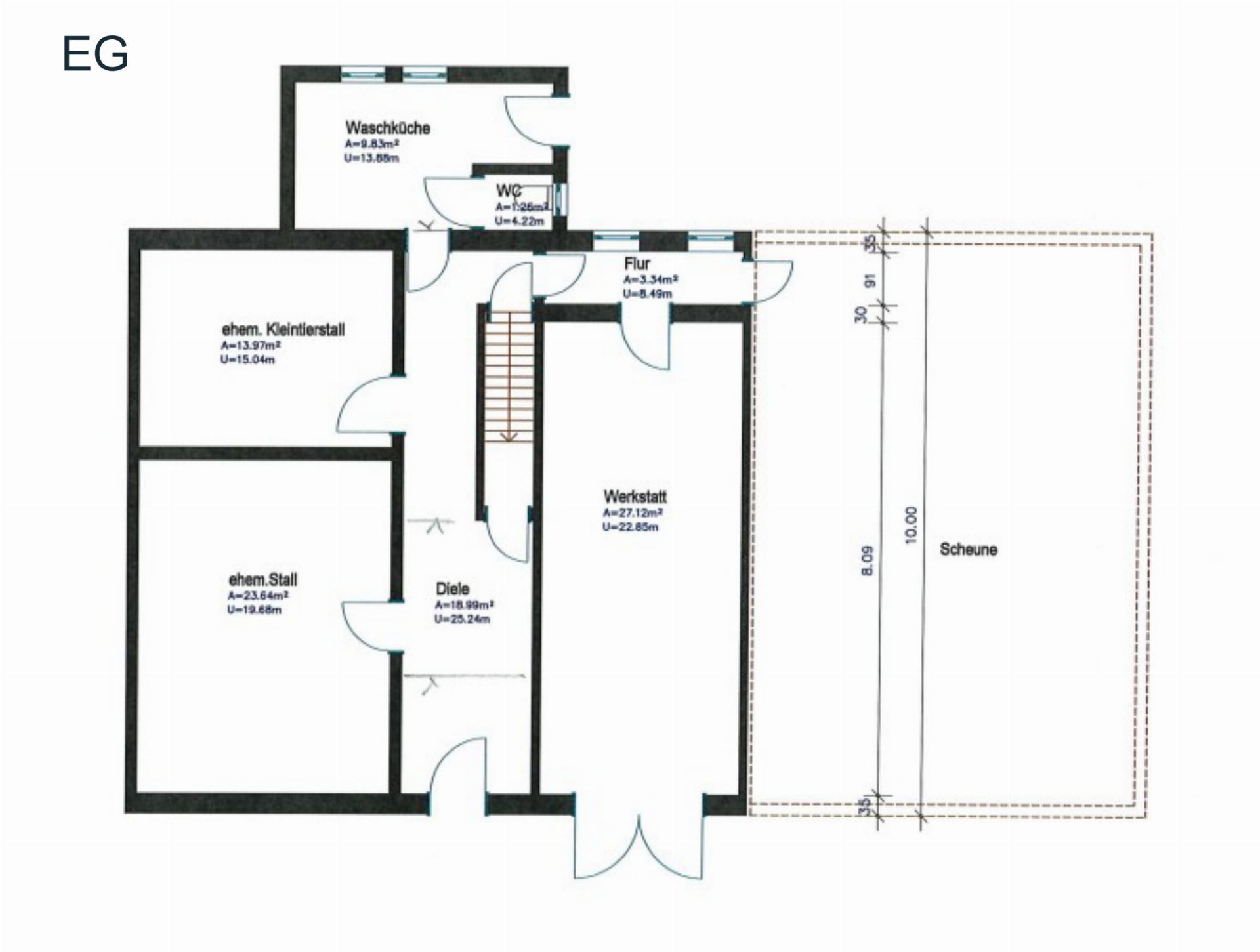
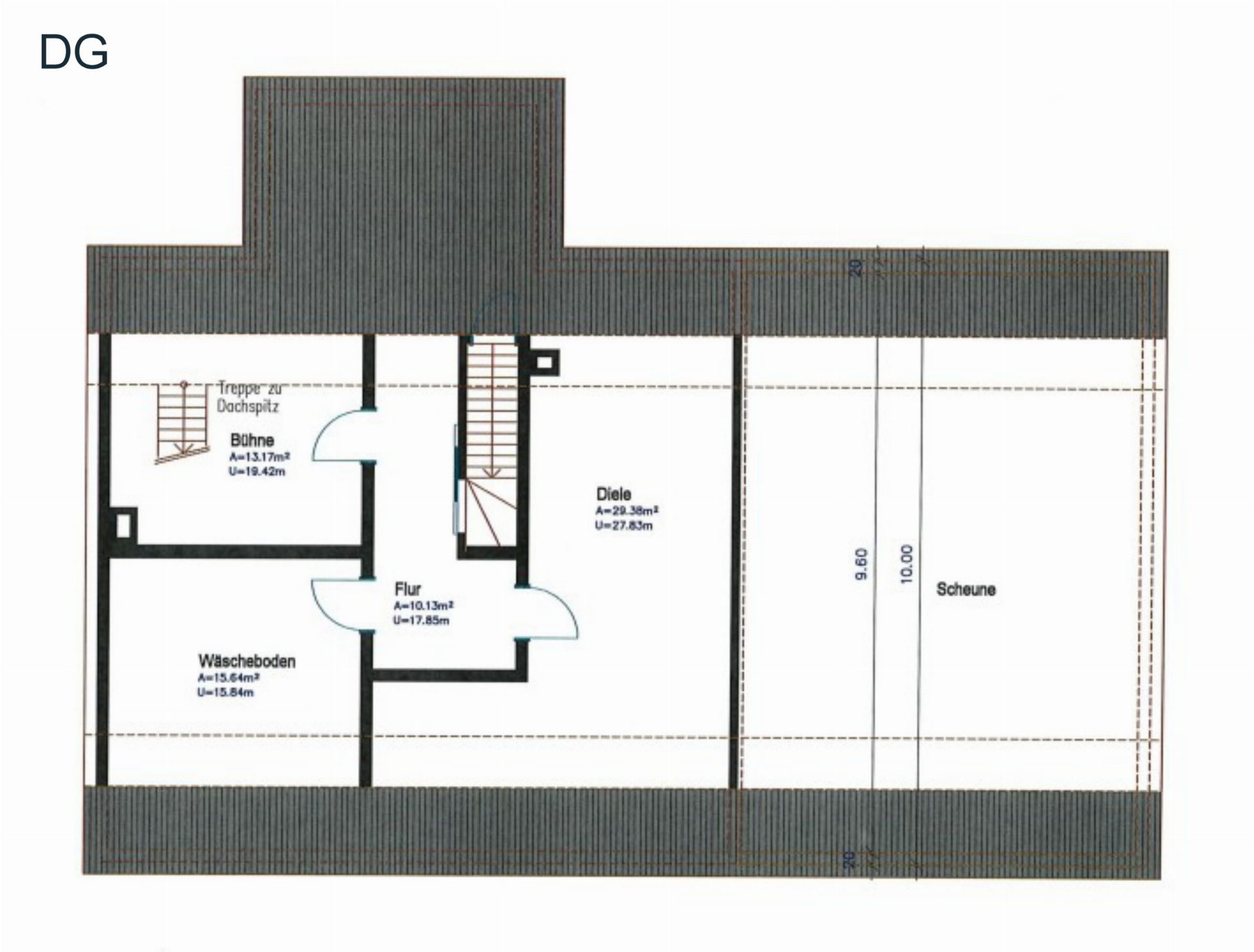
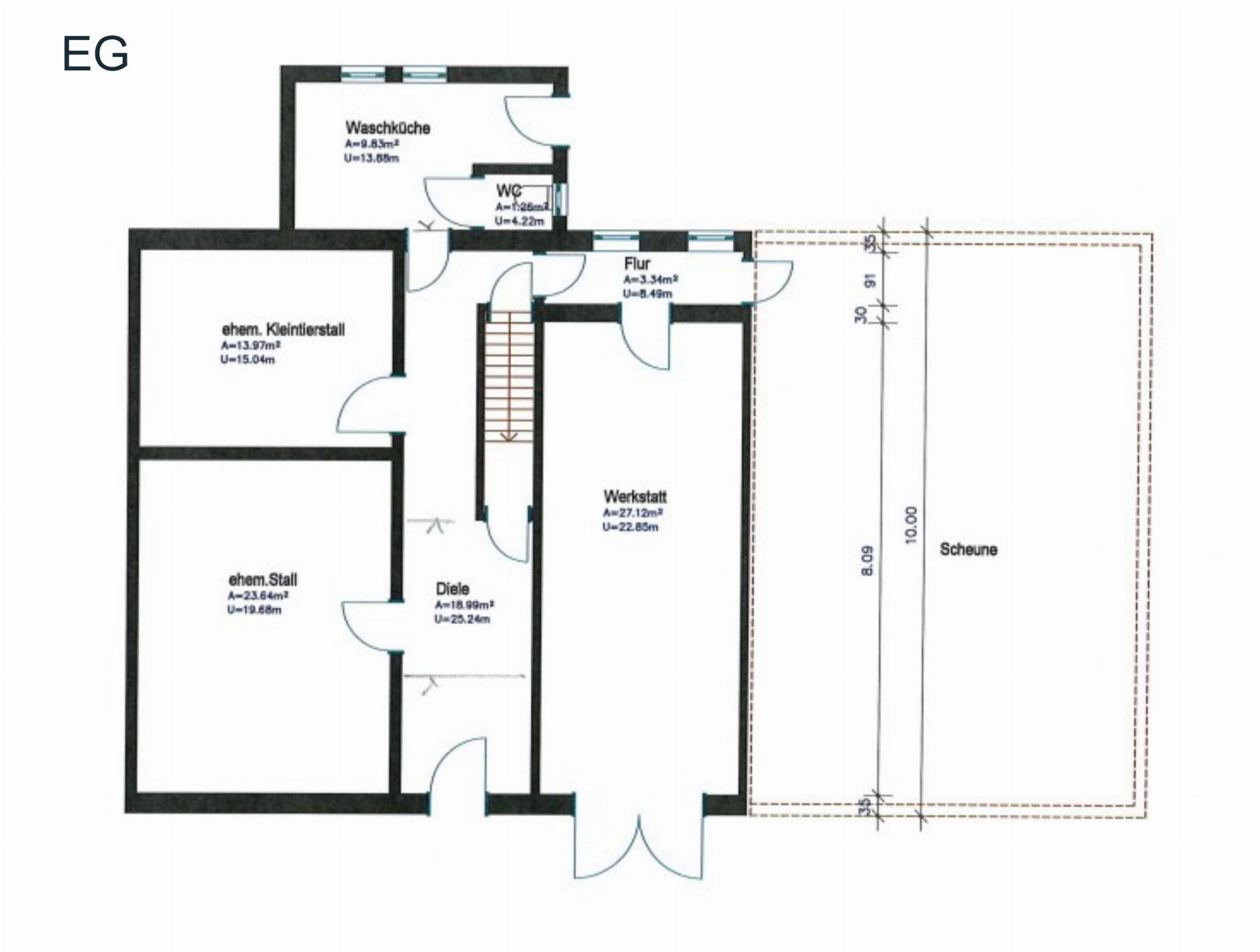
Neben der Hauptwohnung verfügt die Immobilie über umfangreiche Nutzflächen: Gewölbekeller, Bühne, Werkstatt, Scheune und Schuppen – ein Paradies für Handwerker und Kreative.
Auch Naturliebhabern werden viele Möglichkeiten gegeben, der Garten muss nur aus seinem Dornröschenschlaf erweckt werden und sie können sich eine idyllische Oase unter freiem Himmel schaffen.
Für Ihre Fahrzeuge stehen zwei Stellplätze zur Verfügung.
Mit seiner rustikalen Ausstrahlung und dem ursprünglichen Charme ist es ein wahres Schmuckstück für Liebhaber traditioneller Bausubstanz.
Das Haus ist größtenteils renovierungsbedürftig und bietet daher viel Raum für individuelle Gestaltung.
Momentan befindet sich eine 3-Zimmer-Wohnung im Obergeschoss des Hauses.
Eine große Küche, welche ausreichend Platz für einen gemütlichen Essbereich bietet, das Tageslicht-Bad mit Wanne und Dusche und das separate WC vervollständigen die Wohnung.
Neben der Hauptwohnung verfügt die Immobilie über umfangreiche Nutzflächen: Gewölbekeller, Bühne, Werkstatt, Scheune und Schuppen – ein Paradies für Handwerker und Kreative.
Auch Naturliebhabern werden viele Möglichkeiten gegeben, der Garten muss nur aus seinem Dornröschenschlaf erweckt werden und sie können sich eine idyllische Oase unter freiem Himmel schaffen.
Für Ihre Fahrzeuge stehen zwei Stellplätze zur Verfügung.
shareDiese Immobilie teilen
Standort
| Adresse | 73275 Ohmden DEU |
Flächen und Räume
| Zimmer | 3 |
| Badezimmer | 1 |
| Wohnfläche | ca. 102 m² |
| Grundstücksfläche | ca. 385 m² |
| Etagen | 1 |
| Stellplätze | 2 |
Kosten und Mieten
| Kaufpreis | 235.000 € |
| Provision vom Käufer | 4,76 % inkl. 19 % MwSt. |
| MwSt. Satz | 19 % |
Ausstattung
| Ausstattung | Standard |
| Bad | Dusche, Badewanne, Fenster für Tageslicht |
| Böden | Fliesen, Linoleum |
| Heizungsart | Ofen |
| Befeuerung | Elektro |
| Wasch- und Trockenraum | 1 |
| Unterkellert | Teil |
Bauangaben
| Zustand | Renovierungsbedürftig |
Stellplätze
| Anzahl | Preis pro Stellplatz | |
| Freiplätze | 2 | 0 € |
| A+ | A | B | C | D | E | F | G | H |
| 0 | 25 | 50 | 75 | 100 | 125 | 150 | 175 | 200 | 225 | >250 |
keyboard_arrow_up
452
kWh/(m²a)
452
kWh/(m²a)
Energieausweis
| Art | Bedarfsausweis |
| Gültig bis | Juli 2035 |
| Endenergiebedarf | 452 kWh/(m²a) |
| Primärer Energieträger | Holz |
| Wertklasse | H |
| Ausstellungsdatum | 02.07.2025 |
| Jahrgang | 2014 |
Lage
Das Haus befindet sich zentrumsnah gelegen in Ohmden.Die Gemeinde Ohmden liegt am östlichen Rand des Kreises Esslingen an der Grenze zum Landkreis Göppingen und zählt heute rund 1.750 Einwohner. Die nur wenige Kilometer entfernte Schwäbische Alb bietet ein breites Freizeit- und Naherholungsangebot.
Kindergarten, Schule und Bushaltestelle sind zu Fuß erreichbar.
Bis zur Autobahn A8 in Richtung München oder Stuttgart benötigen Sie nur wenige Minuten.
Ein Blick sagt mehr als 1000 Worte....
überzeugen Sie sich vor Ort und vereinbaren Sie einen unverbindlichen Besichtigungstermin.
Wir sind auch abends und am Wochenende für Sie im Einsatz.
Ausstattung
- 3 Zimmer- große Küche
- Tageslicht-Bad
- separates WC
- Bühne
- Scheune
- Werkstatt
- Gewölbekeller
- Garten
- Stellplätze
ALLE RENOVIERUNGEN AUF EINEN BLICK
- Dach (ca. 1975)
- Obergeschoss (ca. 1984)
- Anbau Bad und WC (ca. 1984)
ENERGIEAUSWEIS
Bedarfsausweis (02.07.2025): Endenergieverbrauchswert: 452 kWh/(m²a), (Holz), Baujahr Anlagetechnik 1975 -
Sonstiges
Immobilienfinanzierung - WIR HELFEN IHNEN!Über unsere starken Partner sind wir direkt mit über 400 Banken vernetzt. Da wir alle Immobilienunterlagen bereits haben, brauchen wir nur Ihre persönlichen Unterlagen und ermöglichen Ihnen eine schnelle und reibungslose Finanzierungsanfrage. Zusätzlich prüfen wir, ob Sie Anspruch auf Förderungen oder Einsparpotenzial bei den Kaufnebenkosten haben.
Sie sparen sich Zeit, die Immobilie ist direkt für Sie reserviert und Sie erhöhen Ihre Chance auf eine erfolgreiche Finanzierungszusage.
SPRECHEN SIE UNS AN!
---
Alle Objektangaben basieren auf den uns erteilten Informationen des Eigentümers. Deshalb können wir für die Richtigkeit und Vollständigkeit der Angaben keine Haftung übernehmen.
Jegliche durch Nussgräber Immobilien erstellten Fotos, Daten und Textbeiträge sind urheberrechtlich geschützt. Für die Vervielfältigung von Bildmaterial, Information oder Daten, insbesondere die Verwendung von Texten, oder Textteilen, bedarf es der vorherigen schriftlichen Einwilligung durch Nussgräber Immobilien. Unberechtigte Verwendungen werden zur Anzeige gebracht und ziehen eine Nutzungsberechnung nach sich.
Wir bitten um Verständnis dafür, dass nur vollständig ausgefüllte Anfragen (Name, Telefonnummer, Anschrift) beantwortet werden.
Ihr Ansprechpartner für diese Immobilie
Frau
Rita Schwenk
schwenk@nussgraeber.de
070248059718
015168424914
check_circle
Ihre Nachricht wurde erfolgreich verschickt
Sie werden in Kürze von uns hören oder lesen... vielen Dank für Ihr Interesse.